Nettas Hus III: Annex

Leisure Facility

Sted:

Dypvåg, Norway

Klient:

Teleplan Eiendom AS

Status:

On site, completion summer 2025

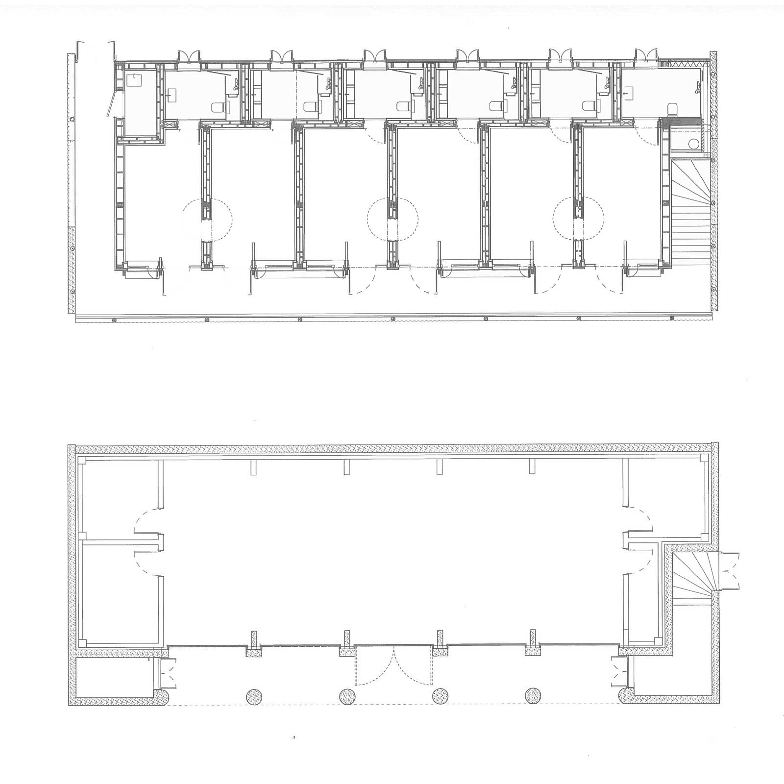
6 leiligheter på toppen av et lagerbygg som del av et større anlegg. Den siste bygningen til anlegget Nettas Hus Resort. 6 rom med eget bad under et pultak. Bygget med riflede fronter, hollandske gavler i hvit betong og CLT-tak over en svalgang kledd med korrugerte plater.